郊区住房和城乡建设局
登录
注冊
长者版
|
无障碍
I
繁体中文
您现在所在的位置:
网站首页
>
政府信息公开首页
>
郊区住建局
>
农村危房改造领域
>
农村危房改造相关文件
索引号:
11340711MB0R21447/202401-00071
组配分类:
农村危房改造相关文件
发布机构:
郊区住房和城乡建设局
主题分类:
综合政务
名称:
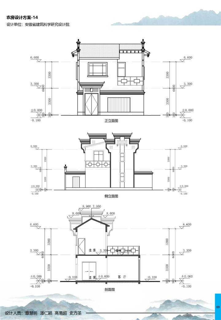
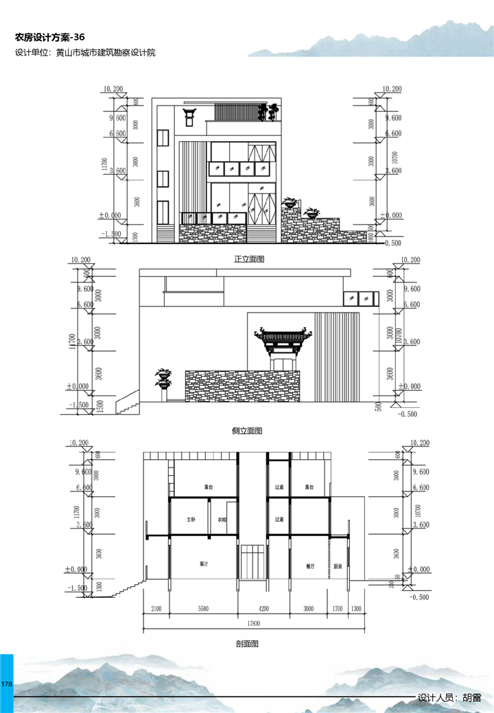
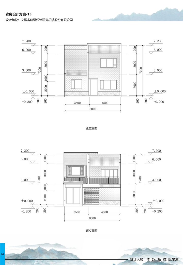
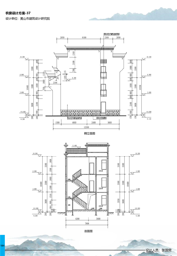
安徽省和美乡村农房图集
文号:
无
发布日期:
2024-01-23
有效性:
有效
安徽省和美乡村农房图集
发布时间:2024-01-23 09:23
来源:郊区住房和城乡建设局
浏览次数:
字体:[
大
中
小
]
文本下载
用微信扫描二维码
分享至好友和朋友圈
×